






La grande traversée
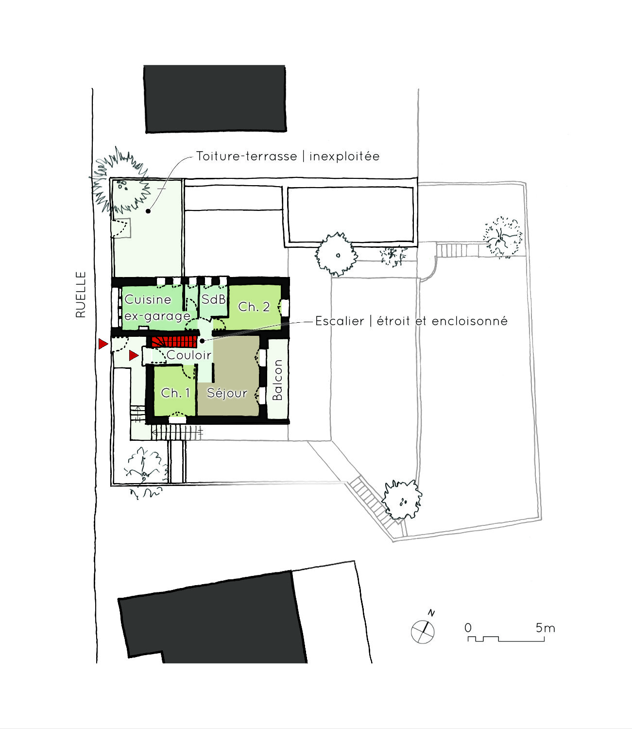
A l’origine, une maison et son jardin qui souffrent tous les deux du même défaut : être coupés en deux étages trop peu communicants entre eux. Le projet : réunir l’ensemble en un seul et même lieu d’habitat, du haut contre la rue jusqu’en bas du jardin, pour une vie dans des lieux plus fluides et adaptés à une famille.
/ Projet : rénovation et reconfiguration complète de la maison – rénovation énergétique – réunion des deux jardins en un unique étagé par des gradins – étude paysagère pour une meilleure définition des usages du jardin
/ Maîtrise d’ouvrage : privée
/ Localisation : Saint-Etienne
/ Calendrier : conception achevé

